Продам помещение свободного назначения 138.5 м.кв.

Просмотров 22
862 133 руб.
на 84% дешевле похожих объектов ?
Йошкар-Ола , Горького улица, д.14
Яна СБЕРБАНК АСТ
Показать телефон
Данные актуальны на 23.01.2026
Пожаловаться на объявление
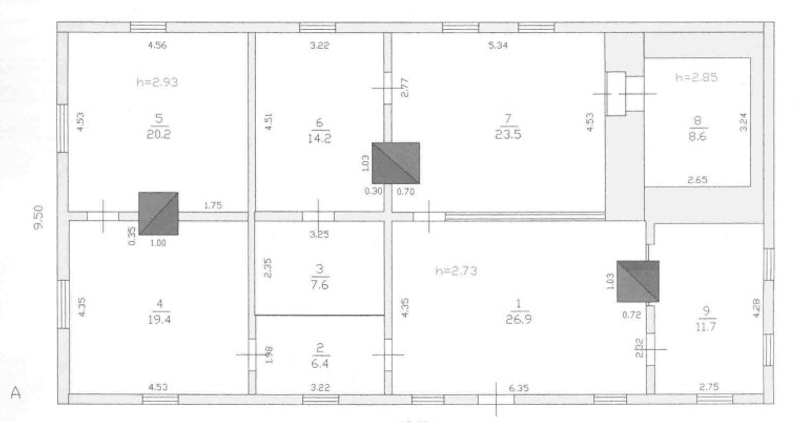
Сбер А предлагает к продаже нежилое здание площадью 138,5 кв. м., расположенного по адресу: Республика Марий Эл, Килемарский район, пгт. Килемары, ул. Горького, д. 14 Реализация посредством проведения торгов на электронной площадке Сбербанк-АСТ. Номер процедуры: SBR065-2601220006 Собственник: Волго-Вятский банк ПАО Сбербанк О лоте: Нежилое помещение общей площадью 138,5 кв. м Этаж: 1 Кадастровый номер: 12:03:3101004:156 Обратная аренда: нет Особые условия: нет По всем вопросам, связанным с лотом, обращайтесь в рабочее время по телефону с 09:00 до 18:00 по МСК.

Дополнительная информация

Тип здания Торговый центр Этаж 1 Этажность 1 Количество комнат - Вход Общий Ремонт С ремонтом
Интернет - Кондиционер - Вентиляция - Пожарная сигнализация - Красная линия -
Объекты, находящиеся поблизости
Медучреждения
Здравушка 259м
Динамика изменения цен на рынке недвижимости ?

По городу Йошкар-Ола, в категории Универсальные помещения
За последние полгода средняя сумма за кв.м. уменьшилась на 1632 руб. Колебание цен происходило от 38861 руб. до 40493 руб. Тендов к значительному изменению цены в последнем месяце не наблюдается.
Вход в личный кабинет